Duy nhất dự thầu liệu có trúng?
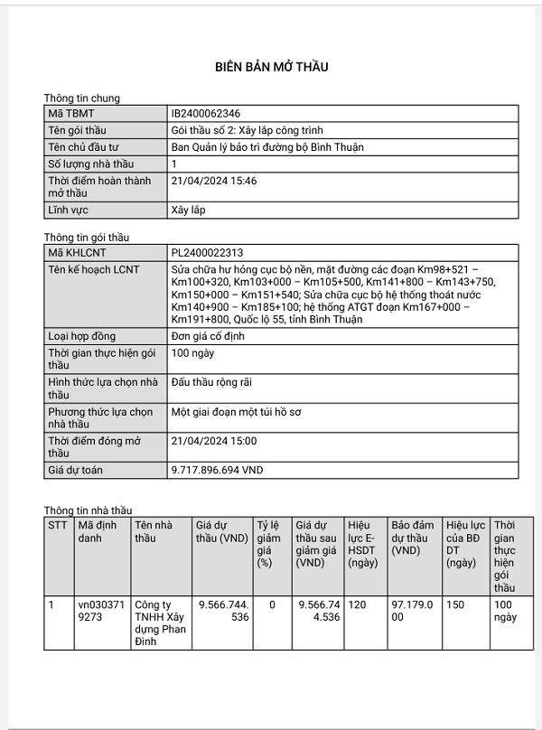
Theo thông tin trên Hệ thống mạng đấu thầu Quốc gia, ngày 21/4/2024, Ban Quản lý bảo trì đường bộ Bình Thuận đã hoàn thành mở thầu Gói thầu số 2: Xây lắp công trình, thuộc Dự án Sửa chữa hư hỏng cục bộ nền, mặt đường các đoạn Km98+521 – Km100+320, Km103+000 – Km105+500, Km141+800 – Km143+750, Km150+000 – Km151+540;
Sửa chữa cục bộ hệ thống thoát nước Km140+900 – Km185+100, hệ thống ATGT đoạn Km167+000 – Km191+800, Quốc lộ 55, tỉnh Bình Thuận.
Tại gói thầu, duy nhất Công ty TNHH Xây dựng Phan Đình tham gia với giá dự thầu 9.566.744.536 đồng.
![]() |
| Biên bản mở thầu (Nguồn: https://muasamcong.mpi.gov.vn.) |
Được biết, Gói thầu số 2 - Dự án Sửa chữa mặt đường QL55, tỉnh Bình Thuận, có tổng mức đầu tư 11.316.000.000 đồng, do Cục Đường bộ Việt Nam phê duyệt tại Quyết định số 4268/QĐ-CĐBVN ngày 18/10/2023; nguồn vốn thực hiện dự án được trích từ ngân sách nhà nước (sự nghiệp chi hoạt động kinh tế đường bộ). Cục Đường bộ Việt Nam giao Ban Quản lý bảo trì đường bộ Bình Thuận chịu trách nhiệm lựa chọn nhà thầu.
Liệu rằng, gói thầu nêu trên, có về tay Công ty TNHH Xây dựng Phan Đình - khi là nhà thầu duy nhất tham dự?
Năng lực nhà thầu ra sao?
Công ty TNHH Xây dựng Phan Đình không phải là cái tên xa lạ với Ban Quản lý bảo trì đường bộ Bình Thuận, bởi đơn vị đã thực hiện hàng loạt gói thầu tại ban này, trong những năm gần đây.
Công ty TNHH Xây dựng Phan Đình (địa chỉ số 19, đường 14, phường An Phú, TP. Thủ Đức, TP. Hồ Chí Minh) thành lập năm 2005; ông Phan Đình Châm là người đại diện pháp luật.
Theo một thống kê mang tính tham khảo, từ năm 2016 đến nay, Công ty TNHH Xây dựng Phan Đình đã tham gia 134 gói thầu, trong đó trúng 88 gói thầu.
Tổng giá trị trúng thầu 1.305.424.774.508 đồng (có 1.214.073.163 đồng là các gói chỉ định thầu); trong đó với vai trò độc lập 941.371.626.055 đồng, với vai trò liên danh 364.053.148.453 đồng.
Là doanh nghiệp đóng trên địa bàn TP. Hồ Chí Minh, nhưng từ năm 2016 đến nay, địa bàn hoạt động đấu thầu của đơn vị này, chủ yếu tại các tỉnh Bình Thuận, Ninh Thuận, Bến Tre, Lâm Đồng…
![]() |
| Quốc lộ 55, đoạn huyện Hàm Tân, tỉnh Bình Thuận (Ảnh: Minh họa) |
Đặc biệt, trong thời gian gần đây, Công ty TNHH Xây dựng Phan Đình là “đối tác” thường xuyên dự thầu và trúng các gói thầu của Ban Quản lý bảo trì đường bộ Bình Thuận. Trong đó, phải kể đến:
Gói thầu số 2: Xây lắp công trình, thuộc Dự án Sửa chữa hệ thống thoát nước, tấm đan bị hư hỏng, các đoạn Km63+000 - Km75+000, Km81+000 - Km95+500, Km184+000 - Km204+750 và hệ thống an toàn giao thông, trên tuyến Quốc lộ 55, tỉnh Bình Thuận.
Tại gói thầu, Ban Quản lý bảo trì đường bộ Bình Thuận đã phê duyệt cho Công ty TNHH Xây dựng Phan Đình trúng thầu với giá 9.364.482.494 đồng (giá gói thầu 10.415.366.116 đồng), thực hiện trong 100 ngày, từ 23/10/2023.
Gói thầu số 2: Xây lắp công trình, thuộc Dự án Sửa chữa hư hỏng nền, mặt đường các đoạn Km71+100 - Km72+252,78, Km74+950 - Km75+300, Km90+100 - Km91+000 và sửa chữa, gia cố lề các đoạn Km74+050 - Km74+250, Km74+550 - Km74+750, Quốc lộ 55, tỉnh Bình Thuận.
Tại gói thầu, Ban Quản lý bảo trì đường bộ Bình Thuận đã phê duyệt cho Công ty TNHH Xây dựng Phan Đình trúng thầu với giá 6.584.881.227 đồng (giá gói thầu 6.896.005.411 đồng), thực hiện trong 120 ngày, từ 18/4/2023.
Gói thầu số 2: Xây lắp công trình, thuộc Dự án Sửa chữa hư hỏng nền, mặt đường các đoạn Km52+680 - Km53+054, Km53+279,04 - Km53+900, Km54+400 - Km55+150, Km62+000 - Km62+500, Km69+077 - Km70+500, Quốc lộ 55, tỉnh Bình Thuận.
Tại gói thầu, Ban Quản lý bảo trì đường bộ Bình Thuận đã phê duyệt cho Công ty TNHH Xây dựng Phan Đình trúng thầu với giá 8.489.995.910 đồng (giá gói thầu 8.890.114.624 đồng), thực hiện trong 120 ngày, từ 18/4/2023…


