Vinacomin: Hé lộ danh tính liên danh duy nhất đấu thầu gói thiết bị đo lường

Dù đấu thầu rộng rãi qua mạng, gói thầu số 2 thuộc dự án tự động hóa của Vinacomin chỉ thu hút một nhà thầu tham gia, đặt ra dấu hỏi về tính cạnh tranh thực tế.

Hệ thống mạng đấu thầu quốc gia vừa ghi nhận kết quả mở thầu gói thầu số 02: “Cung cấp thiết bị kiểm tra đo lường và bảo trì hệ thống tự động hoá” (Mã TBMT: IB2500558816). Dù được thông báo đấu thầu rộng rãi, kết quả lại cho thấy một kịch bản ít ai ngờ tới khi chỉ có duy nhất một đơn vị nộp hồ sơ dự thầu.

Từ Quyết định của Tổng Giám đốc TKV đến kịch bản "một ngựa về đích"

Dự án này khởi nguồn từ Quyết định số 1281/QĐ-TKV ngày 20/06/2025 do ông Vũ Anh Tuấn, Tổng Giám đốc Tập đoàn Công nghiệp Than - Khoáng sản Việt Nam (TKV) ký phê duyệt. Theo đó, Viện Cơ khí Năng lượng và Mỏ - Vinacomin được giao làm Chủ đầu tư dự án đầu tư xây dựng trung tâm bảo trì, hỗ trợ vận hành hệ thống tự động hóa DCS, SCADA (giai đoạn 1) với tổng mức đầu tư 7.262.285.034 đồng.

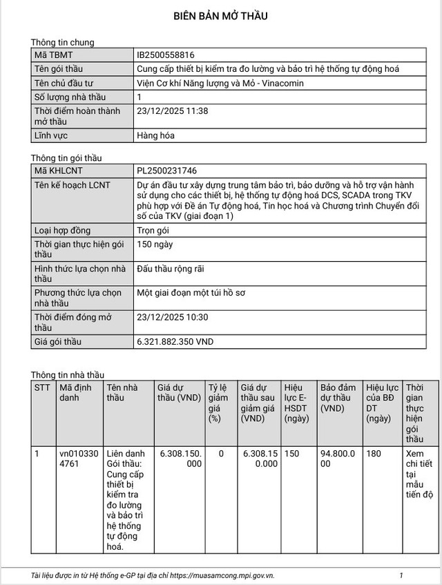
1-3540.jpg
Biên bản mở thầu. Nguồn MSC

Trong đó, gói thầu số 02 có giá 6.321.882.350 đồng, sử dụng nguồn Quỹ phát triển KH&CN của TKV. Theo Biên bản mở thầu hoàn thành lúc 11:38 ngày 23/12/2025, liên danh có mã định danh vn0103304761 là nhà thầu duy nhất tham gia với giá dự thầu 6.308.150.000 đồng. Như vậy, nếu trúng thầu ở mức giá này, số tiền tiết kiệm cho ngân sách doanh nghiệp chỉ vỏn vẹn khoảng 13 triệu đồng (tương ứng 0,2%).

Dấu hỏi về sự thay đổi sát nút trong hồ sơ mời thầu

Quá trình mời thầu gói thầu này ghi nhận những biến động pháp lý đáng chú ý. Ban đầu, gói thầu được bà Nguyễn Thu Hiền, Viện trưởng Viện Cơ khí Năng lượng và Mỏ phê duyệt HSMT tại Quyết định 741/QĐ-VCNM ngày 05/12/2025. Tuy nhiên, đến ngày 17/12/2025 – tức chỉ vài ngày trước thời điểm đóng thầu dự kiến – bà Hiền tiếp tục ký Quyết định số 785/QĐ-VCNM để sửa đổi HSMT.

Tại phụ lục sửa đổi, thời hạn hiệu lực của E-HSDT được điều chỉnh tăng đột biến từ ≥ 30 ngày lên ≥ 150 ngày; bảo đảm dự thầu tăng từ 60 ngày lên 180 ngày; và đặc biệt thời gian thực hiện hợp đồng được nới lỏng từ 30 ngày lên 150 ngày. Việc gia hạn này được lý giải là để đảm bảo tính khả thi, nhưng cũng đặt ra câu hỏi liệu các tiêu chí ban đầu có quá khắt khe khiến các nhà thầu khác phải "bỏ cuộc"?

Yêu cầu kỹ thuật: Tương đương nhưng khó nhằn?

Phân tích Chương V về Yêu cầu kỹ thuật của gói thầu do ông Nguyễn Thu Hiền ký, danh mục hàng hóa gồm 27 nhóm thiết bị công nghệ cao. HSMT yêu cầu toàn bộ thiết bị phải mới 100%, sản xuất từ năm 2024 trở lại đây.

Các thiết bị quan trọng như: Máy phân tích giao thức (tương đương mã LE-3500XR), Thiết bị rò cáp điện (tương đương Fluke 2052), hay Bộ đo chất lượng điện năng chuyên sâu (tương đương PQ-Box150) đều có yêu cầu thông số kỹ thuật cực kỳ chi tiết. Ngoài ra, gói thầu còn bao gồm phần mềm thiết kế hệ thống điện với bản quyền vĩnh viễn (Perpetual License) và yêu cầu cán bộ đào tạo phải có chứng chỉ của hãng.

Góc nhìn từ chuyên gia và pháp lý

Dưới góc độ chuyên gia đấu thầu, ông Nguyễn Quốc Vũ nhận định: "Việc một gói thầu cung cấp thiết bị hàng hóa phổ biến trên thị trường nhưng chỉ có một nhà thầu tham dự là điều cần lưu ý. Mặc dù Luật Đấu thầu 22/2023 không cấm việc này, nhưng chủ đầu tư cần rà soát xem yêu cầu kỹ thuật có tính chất 'cài cắm' hay không. Đặc biệt là quy định thiết bị phải sản xuất từ năm 2024, điều này có thể vô tình loại bỏ nhiều nhà thầu có sẵn hàng dự trữ chất lượng từ năm 2023 nhưng vẫn đảm bảo tính năng."

Đồng quan điểm, Luật sư Nguyễn Văn Lập (Đoàn Luật sư TP.HCM) nhấn mạnh: "Theo Luật Đấu thầu 22/2023 và Luật số 90/2025 bổ sung, tính cạnh tranh và công bằng là ưu tiên hàng đầu. Việc sửa đổi HSMT và gia hạn đóng thầu sát ngày (như trường hợp Quyết định 785/QĐ-VCNM ký ngày 17/12/2025 cho ngày mở thầu 23/12/2025) phải tuân thủ nghiêm ngặt thời gian tối thiểu theo quy định để nhà thầu kịp điều chỉnh HSDT. Nếu việc sửa đổi làm thay đổi bản chất gói thầu mà không dành đủ thời gian cho các nhà thầu khác tiếp cận, có thể dẫn đến hiện tượng 'độc diễn' như biên bản mở thầu đã thể hiện."

Với giá trị gói thầu hơn 6 tỷ đồng từ nguồn quỹ phát triển khoa học công nghệ, việc chỉ có một nhà thầu tham dự với tỉ lệ giảm giá mang tính "tượng trưng" chắc chắn sẽ khiến dư luận và các cơ quan quản lý của TKV phải lưu tâm. Liệu quy trình lựa chọn nhà thầu tại Viện Cơ khí Năng lượng và Mỏ đã thực sự tối ưu hóa lợi ích kinh tế cho doanh nghiệp nhà nước?

Tiết kiệm gần 1,5 tỷ đồng tại gói thầu xây lắp của Trường Đại học Cần Thơ [Kỳ 1]

Công ty TNHH Đầu tư Xây dựng Trung Tính vừa được công bố trúng gói thầu xây lắp với giá trị giảm sâu so với giá dự toán ban đầu.

Ngày 27/11/2025, Hiệu trưởng Trường Đại học Cần Thơ, ông Trần Trung Tính đã ký Quyết định số 6561/QĐ-ĐHCT phê duyệt kết quả lựa chọn nhà thầu gói thầu: Thi công xây dựng công trình và mua sắm lắp đặt thiết bị dự án Cải tạo Nhà 4T2 thành Nhà học tập trung, Khu I - Trường Đại học Cần Thơ. Đây là gói thầu quan trọng sử dụng nguồn Quỹ phát triển hoạt động sự nghiệp của nhà trường.

1-6429.jpg
Ảnh minh họa

Phú Quốc: Một nhà thầu được "chỉ định" thực hiện gói thầu thiết bị tại dự án chỉnh trang đô thị [Kỳ 1]

Dự án nâng cấp các phòng ban và chỉnh trang đô thị TP Phú Quốc có tổng mức đầu tư hơn 12 tỷ đồng, trong đó gói thầu thiết bị vừa tìm được nhà thầu trúng theo diện rút gọn.

Ngày 18/04/2025, Chủ tịch UBND thành phố Phú Quốc đã ký Quyết định số 1351/QĐ-UBND phê duyệt Báo cáo kinh tế - kỹ thuật đầu tư xây dựng công trình: Nâng cấp, cải tạo các phòng ban và chỉnh trang đô thị. Dự án này có tổng mức đầu tư là 12.102.959.880 đồng, sử dụng nguồn vốn ngân sách thành phố, nhằm mục tiêu khắc phục tình trạng xuống cấp của Nhà thiếu nhi, sân vận động và đảm bảo cơ sở vật chất phục vụ người dân địa phương.

Trong cơ cấu chi phí của dự án, chi phí thiết bị được phê duyệt là 1.562.761.080 đồng. Đến ngày 04/11/2025, Giám đốc Ban Quản lý dự án đầu tư xây dựng khu vực Phú Quốc ký Quyết định số 156/QĐ-BQL phê duyệt điều chỉnh kế hoạch lựa chọn nhà thầu, trong đó Gói thầu số 08: Thiết bị có giá gói thầu được xác định là 1.083.583.440 đồng. Đáng chú ý, gói thầu này được tổ chức theo hình thức chỉ định thầu rút gọn, thời gian bắt đầu lựa chọn nhà thầu vào Quý IV năm 2025.

Công ty 11: "Ông lớn" đường thủy và câu hỏi năng lực khi trúng thầu dồn dập khắp cả nước

Sở hữu tỷ lệ trúng thầu áp đảo, Công ty Cổ phần Quản lý Bảo trì Đường thủy Nội địa số 11 liên tiếp được xướng tên tại các gói thầu từ Cục Đường thủy nội địa đến các địa phương. Với khối lượng công việc khổng lồ trải dài từ Hà Nội đến Đồng Nai, miền Tây, năng lực thực tế của nhà thầu này đang là tâm điểm chú ý.

Trở lại câu chuyện Gói thầu số 01: Công tác Quản lý, bảo dưỡng thường xuyên đường thủy nội địa năm 2026 tại Đồng Nai. Như đã phản ánh ở kỳ trước, Liên danh Công ty Cổ phần Quản lý Bảo trì Đường thủy Nội địa số 11 (Công ty Đường thủy Nội địa số 11) và Công ty Tín Phát đã trúng thầu trong thế "độc diễn". Tuy nhiên, nhìn vào hồ sơ năng lực của thành viên đứng đầu liên danh là Công ty Đường thủy Nội địa số 11, việc trúng thầu này dường như chỉ là "chuyện nhỏ" trong một bức tranh trúng thầu quy mô lớn hơn rất nhiều.

Hồ sơ trúng thầu "khủng"