Sau thời gian dài bị giãn cách xã hội vì đại dịch COVID -19, một gia chủ ở TP HCM đã nhờ kiến trúc sư thiết kế cho mình “ngôi nhà nghỉ dưỡng” dành cho gia đình 3 người sinh sống, để thoát khỏi khung cảnh đóng hộp trong căn hộ ở trung tâm thành phố, cũng như được sống gần gũi với thiên nhiên hơn.
Sau 3 tháng, ngôi nhà nhỏ có không gian thoáng đãng với một mảnh vườn nhỏ đã được hoàn thành.
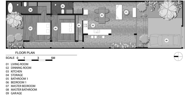
Dựa trên cách bố trí xây dựng của căn nhà cũ, kiến trúc sư mở rộng không gian ngôi nhà bằng cách loại bỏ những bức tường không cần thiết.
Không gian trong bếp mở, luôn ngập tràn ánh nắng tự nhiên nhờ nằm dưới mái hiên bằng kính trong suốt, chạy dọc hành lang.
Trong bếp cũng bố trí một khu vườn nhỏ để gia chủ có thể cảm nhận thiên nhiên một cách gần gũi nhất có thể.
Mái hiên bằng kính rộng mở dọc theo hành lang đón ánh sáng tự nhiên vào tất cả các khu vực của ngôi nhà như phòng khách, phòng ngủ trung tâm và phòng ngủ chính, tạo cảm giác như cả bầu trời đang ở trong ngôi nhà.
Nội thất phòng ngủ mang phong cách tối giản, để hướng tới sự thư giãn.
Phòng khách có một khu vực dành riêng cho khu vườn nhỏ trong nhà.
Sân sau gợi nhớ đến một không gian nghỉ dưỡng với khu vườn thanh bình, nơi chủ nhân có thể tận hưởng những làn gió mát dưới những tán cây xanh.
